281 Victoria Street West

Offered at: $3,498,000

MLS®: 10364915

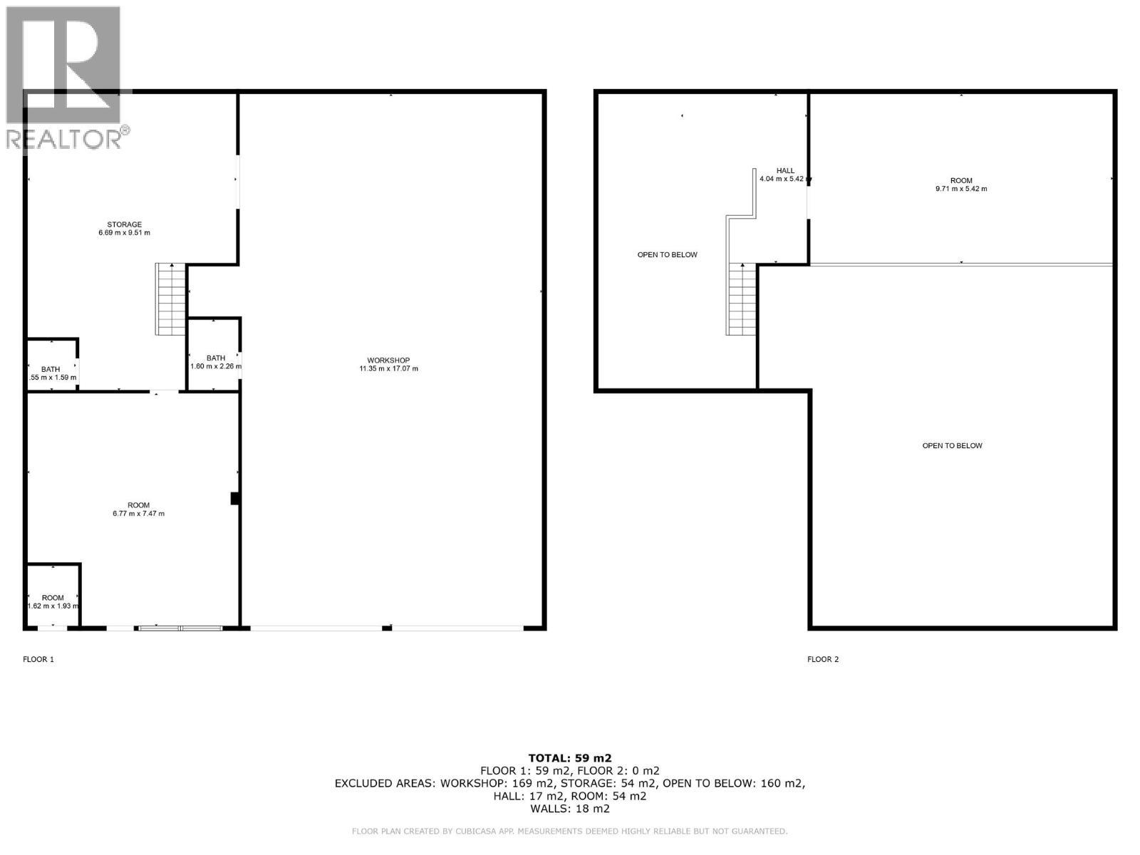
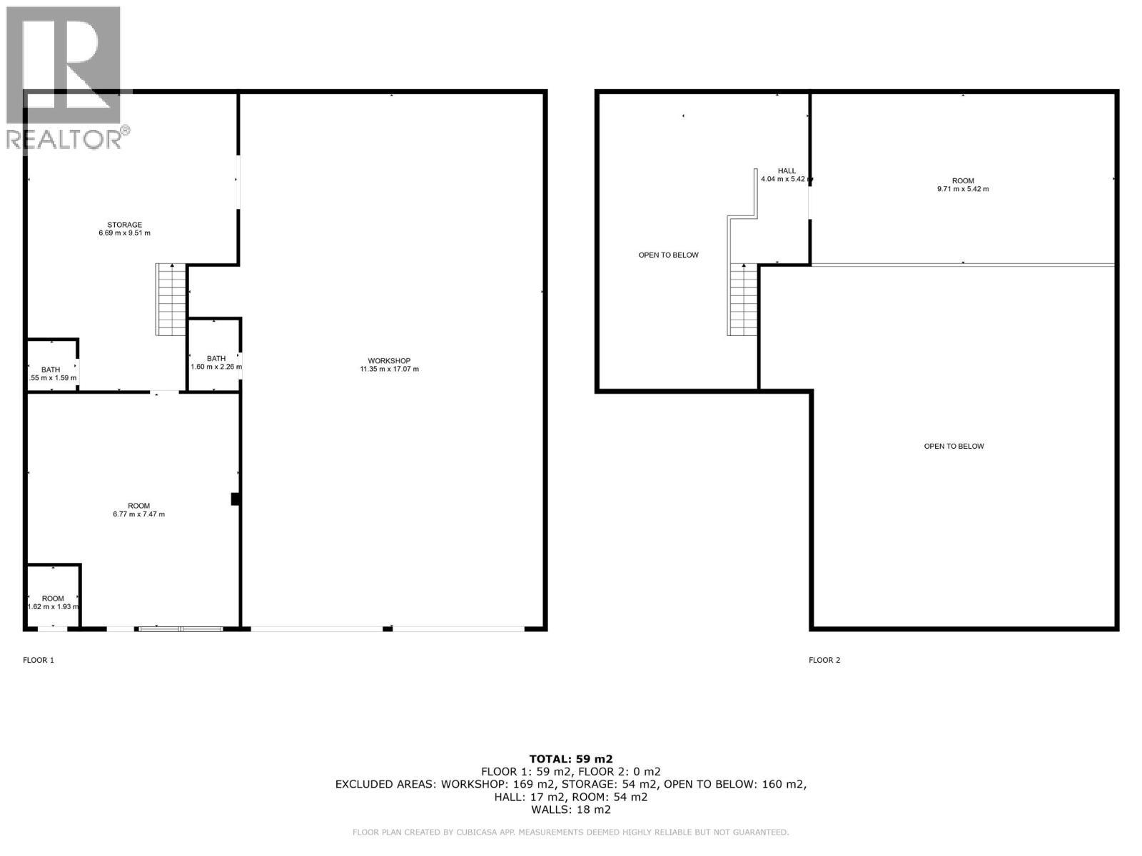
Prime investment and holding property in the vibrant core of Kamloops! 281 Victoria Street West presents over 12,000 sq.ft. of leasable space across nearly three-quarters of an acre of C6 Arterial Commercial zoned land. This well-maintained mixed-use complex offers six commercial units (formerly seven) along with three residential apartments measuring approximately 600–750 sq.ft. each. Current commercial tenants include a blend of retail, office, service, and light industrial users such as a restaurant, mechanic, tattoo studio, and beauty supplier, with spaces ranging between 900–3,500 sq.ft. Built with a combination of concrete and wood-frame construction, the property has benefited from many upgrades over time. The site offers 8’–16’ ceiling heights, excellent street exposure, and level access for vehicles and pedestrians along West Victoria Street. Located just minutes from the downtown business district and City Hall, and steps from the confluence of the North and South Thompson Rivers, this location benefits from Kamloops’ reputation as one of Canada’s sunniest cities. With its strong tenant mix, solid income stream, and high-traffic visibility, this is a rare opportunity to own a strategically positioned, income-generating property in one of the city’s most accessible corridors. Contact the listing agent today for a full information package. (id:6769)

Quick Stats

Key Home Data

0
BATH(S)
BED(S)
12058 Sq Ft
SQFT
YES
SHOWING AVAILABLE
Property Type:
Other

Payment Calculator

Calculate your monthly mortgage payment.

Mortgage Amount
$
Amortization
years
Payment Freq.
Interest Rate
%
Calculating...

All About the Details

See specific details below.

Neighbourhood Statistics

Get to know your neighbourhood.

Similar Properties

Other properties you might like.

Search by Keyword:
1

Request a Showing

Have questions about this property?

Chat Now

Contact Nicholas T. Parker *PREC
About This Property.


Office: (250) 462-5464