5201 26 Street

Offered at: $2,495,000

MLS®: 10361718

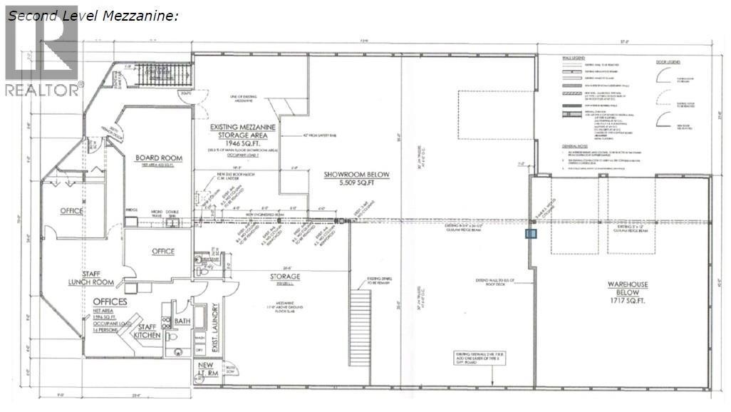
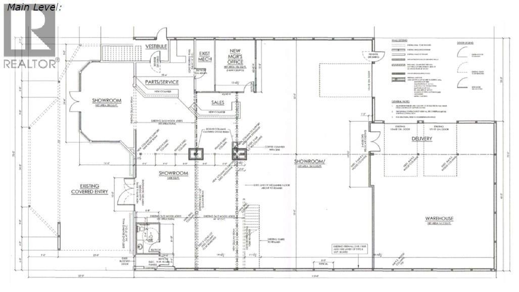
Prime commercial opportunity in a highly visible location at the north end of Vernon, right on one of the city’s main commercial routes. This property offers exceptional exposure and easy accessibility, making it ideal for a wide range of businesses. The building features a spacious main floor layout with a massive warehouse area, perfectly suited for storage, distribution, or light industrial use. In addition, the property includes retail spaces on the main level, providing the flexibility to operate a storefront, showroom, or customer-facing business alongside warehouse operations. A rare chance to secure a versatile commercial property in a strategic, high-traffic location. (id:6769)

Quick Stats

Key Home Data

0
BATH(S)
BED(S)
10818 Sq Ft
SQFT
YES
SHOWING AVAILABLE
Property Type:
Industrial

Payment Calculator

Calculate your monthly mortgage payment.

Mortgage Amount
$
Amortization
years
Payment Freq.
Interest Rate
%
Calculating...

All About the Details

See specific details below.

Neighbourhood Statistics

Get to know your neighbourhood.

Similar Properties

Other properties you might like.

Search by Keyword:
« prev 1 2 3 next »

Request a Showing

Have questions about this property?

Chat Now

Contact Nicholas T. Parker *PREC
About This Property.


Office: (250) 462-5464