2931 Thacker Drive

Offered at: $988,000

MLS®: 10379040

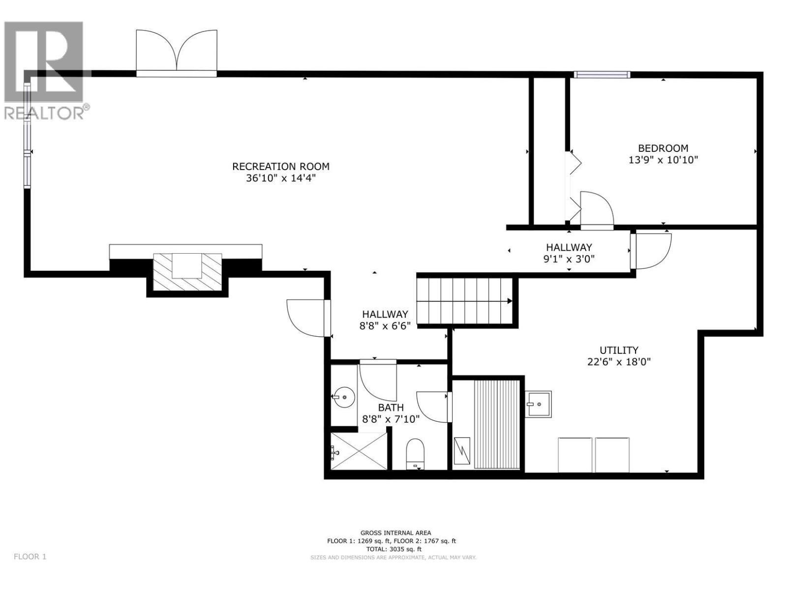
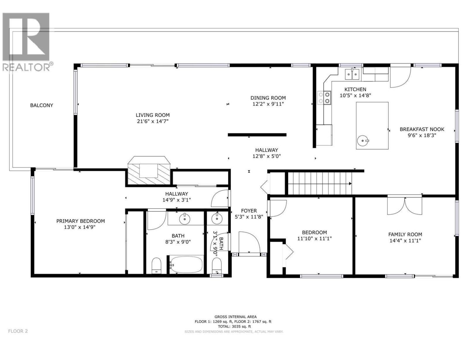
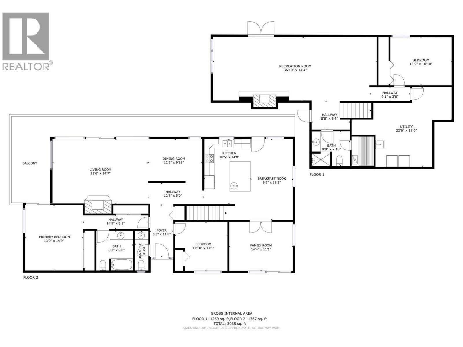
Unbeatable Value in Lakeview Heights - Experience resort-style living in the heart of the Okanagan Wine Trail. This three bedroom, three bathroom sanctuary is an entertainer’s dream, featuring an expansive outdoor oasis complete with a sparkling pool, hot tub, rejuvenating sauna, and a custom fire pit. The professionally landscaped grounds offer ultimate serenity with a tranquil pond, meandering stream, and lush greenery. Inside, the open-concept floor plan is flooded with natural light, highlighting a chef-inspired kitchen and inviting living spaces. The primary retreat offers private outdoor access, while the additional bedrooms are perfect for family or a home office. Practicality meets luxury with two driveways, ample guest parking, and dedicated RV space. Bonus: Zoning allows for a carriage home! Located minutes from world-class wineries, hiking, and dining—this is the ultimate Okanagan lifestyle. (id:6769)

Quick Stats

Key Home Data

3
BATH(S)
3
BED(S)
3290 Sq Ft
SQFT
YES
SHOWING AVAILABLE
Property Type:
Single Family
Home Ownership:
Freehold

Payment Calculator

Calculate your monthly mortgage payment.

Mortgage Amount
$
Amortization
years
Payment Freq.
Interest Rate
%
Calculating...

All About the Details

See specific details below.

Neighbourhood Statistics

Get to know your neighbourhood.

Similar Properties

Other properties you might like.

Search by Keyword:
« prev 1 2 3 4 5 6 ... 44 45 46 next »

Request a Showing

Have questions about this property?

Chat Now

Contact Nicholas T. Parker *PREC
About This Property.


Office: (250) 462-5464