#3 1860 Boucherie Road

Offered at: $299,900

MLS®: 10369719

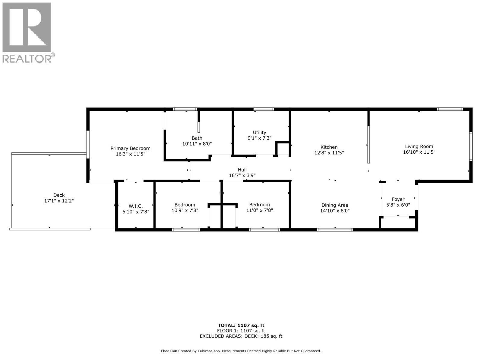
Peek a Boo Lakeview Living in West Kelowna. Welcome to Unit #3 at 1860 Boucherie Road where modern comfort meets breathtaking scenery. This beautifully renovated 3-bedroom, 1-bathroom home offers 1,107 sq. ft. of open-concept living space, a gourmet kitchen with beautiful cabinetry, sleek stainless steel appliances, & plenty of counter space for meal prep or entertaining. The adjoining dining area is spacious & inviting ideal for hosting family or friends. Wake up each day to a million-dollar view from the large primary bedroom, which features a generous walk-in closet. The two additional bedrooms offer flexibility for family, guests, or a home office. The walk-through bathroom includes a massive soaker tub, creating the perfect space to unwind. Stylish upgrades continue with a gorgeous washer & dryer, while outside, the home boasts grey Hardie board siding, decorative window trim, & a massive 185 sq. ft. deck perfect for soaking up the view. The sprawling layout includes a bright living room, a functional kitchen (12'8"" x 11'5""), & a sunny dining area (14'10"" x 8'0""). Handy 10 x 8 Storage shed for yard tools & more Situated in a peaceful community that feels like the country—is just 5 minutes from amenities, schools, and services—this home offers the perfect balance of tranquility & convenience. Whether you’re downsizing, investing, or buying your first lakeview property, this is your opportunity to own a slice of paradise in West Kelowna. Motivated Seller Bring Your offers! (id:6769)

Quick Stats

Key Home Data

1
BATH(S)
3
BED(S)
1107 Sq Ft
SQFT
YES
SHOWING AVAILABLE
Property Type:
Single Family

Payment Calculator

Calculate your monthly mortgage payment.

Mortgage Amount
$
Amortization
years
Payment Freq.
Interest Rate
%
Calculating...

All About the Details

See specific details below.

Neighbourhood Statistics

Get to know your neighbourhood.

Similar Properties

Other properties you might like.

Search by Keyword:
« prev 1 2 3 4 5 6 ... 49 50 51 next »

Request a Showing

Have questions about this property?

Chat Now

Contact Nicholas T. Parker *PREC
About This Property.


Office: (250) 462-5464