#5 222 Temple Street

Offered at: $620,000

MLS®: 10358271

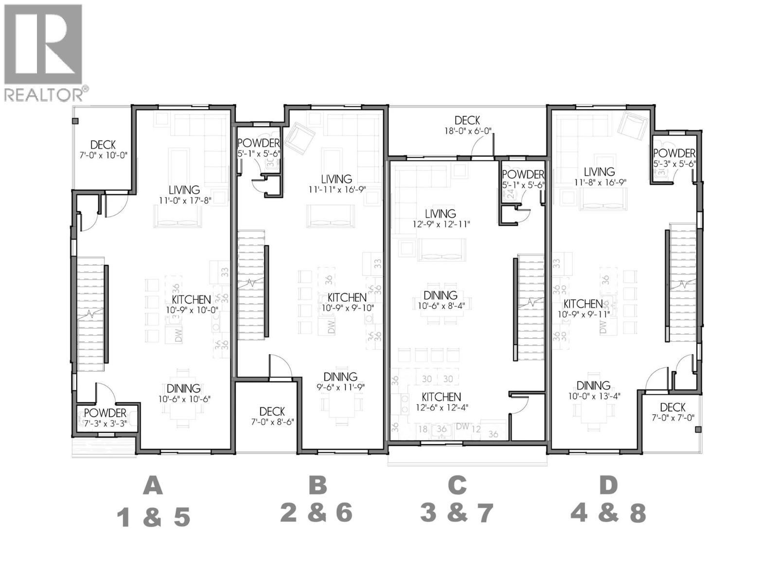
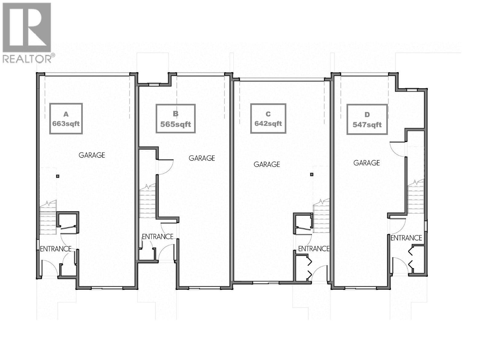
Welcome to #5 at MaraVista Sicamous — a stylish, end unit functional townhome offering 1,582 sq.ft. of thoughtfully designed living space plus a generous 663 sq.ft. garage with an 8’ overhead door, measuring 39’ deep x 19.5’ wide (exterior). The main entry includes a coat closet, leading upstairs to a bright, open-concept main floor with soaring 9’ ceilings that create an airy, inviting atmosphere ,perfect for entertaining. Enjoy a large eating bar, electric fireplace, spacious dining area, powder room, & a 7’ x 8.5’ outdoor deck for sunny morning coffees. Upstairs, you’ll find 2 spacious bedrooms plus a den. Both bedrooms feature private ensuites, & the primary suite offers an enhanced walk-in closet with exceptional storage & organization. Laundry is conveniently located on the top floor. Modern finishings include quartz countertops throughout, white cabinetry, matte black hardware, neutral vinyl plank flooring, off-white walls & trim, & enhanced soundproofing. The exterior boasts Hardy Plank siding, energy-efficient windows, & a high-efficiency mini-split A/C system for year-round comfort. Fully fenced yard. Prewired for fiber optic internet. With only 5% down, plus a $5,000 appliance credit for the first 4 units sold in the building, this is a smart buy. Low strata $356.11/month. Pet size restrictions apply. Long-term rentals only. Close to downtown Sicamous, parks, beaches, — this is your opportunity to own one of the most functional & stylish townhomes in the Shuswap. (id:6769)

Quick Stats

Key Home Data

3
BATH(S)
3
BED(S)
1551 Sq Ft
SQFT
YES
SHOWING AVAILABLE
Property Type:
Single Family
Home Ownership:
Strata

Payment Calculator

Calculate your monthly mortgage payment.

Mortgage Amount
$
Amortization
years
Payment Freq.
Interest Rate
%
Calculating...

All About the Details

See specific details below.

Neighbourhood Statistics

Get to know your neighbourhood.

Similar Properties

Other properties you might like.

Search by Keyword:
« prev 1 2 3 4 5 6 ... 408 409 410 next »

Request a Showing

Have questions about this property?

Chat Now

Contact Nicholas T. Parker *PREC
About This Property.


Office: (250) 462-5464