#105 7450 Dallas Drive

Offered at: $15

MLS®: 10331060

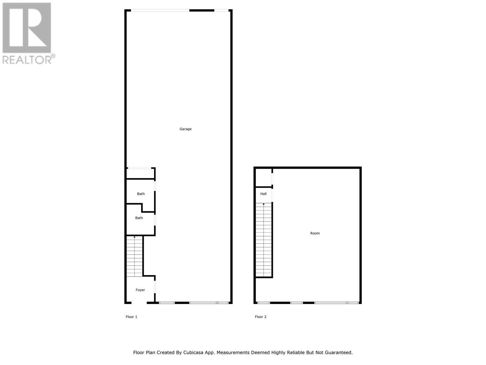
Warehouse with combined office space only 14 minutes from downtown Kamloops. Flexible C4 zoning allows for a wide range of uses. A fully finished mezzanine makes for an ideal office. Warehouse space accessed by 14' doors and contains 2 bathrooms additional hot water line to rear of bay and an added dryer plug for an in unit dryer (dryer not included). Total leasable area 2448 sqft. NNN $5.00/sqft. (id:6769)

Quick Stats

Key Home Data

0
BATH(S)
BED(S)
2448 Sq Ft
SQFT
YES
SHOWING AVAILABLE
Property Type:
Other

Payment Calculator

Calculate your monthly mortgage payment.

Mortgage Amount
$
Amortization
years
Payment Freq.
Interest Rate
%
Calculating...

All About the Details

See specific details below.

Neighbourhood Statistics

Get to know your neighbourhood.

Similar Properties

Other properties you might like.

Search by Keyword:
« prev 1 2 3 4 5 6 ... 63 64 65 next »

Request a Showing

Have questions about this property?

Chat Now

Contact Nicholas T. Parker *PREC
About This Property.


Office: (250) 462-5464