9 Hibiscus Court

Offered at: $1,099,900

MLS®: 10329658

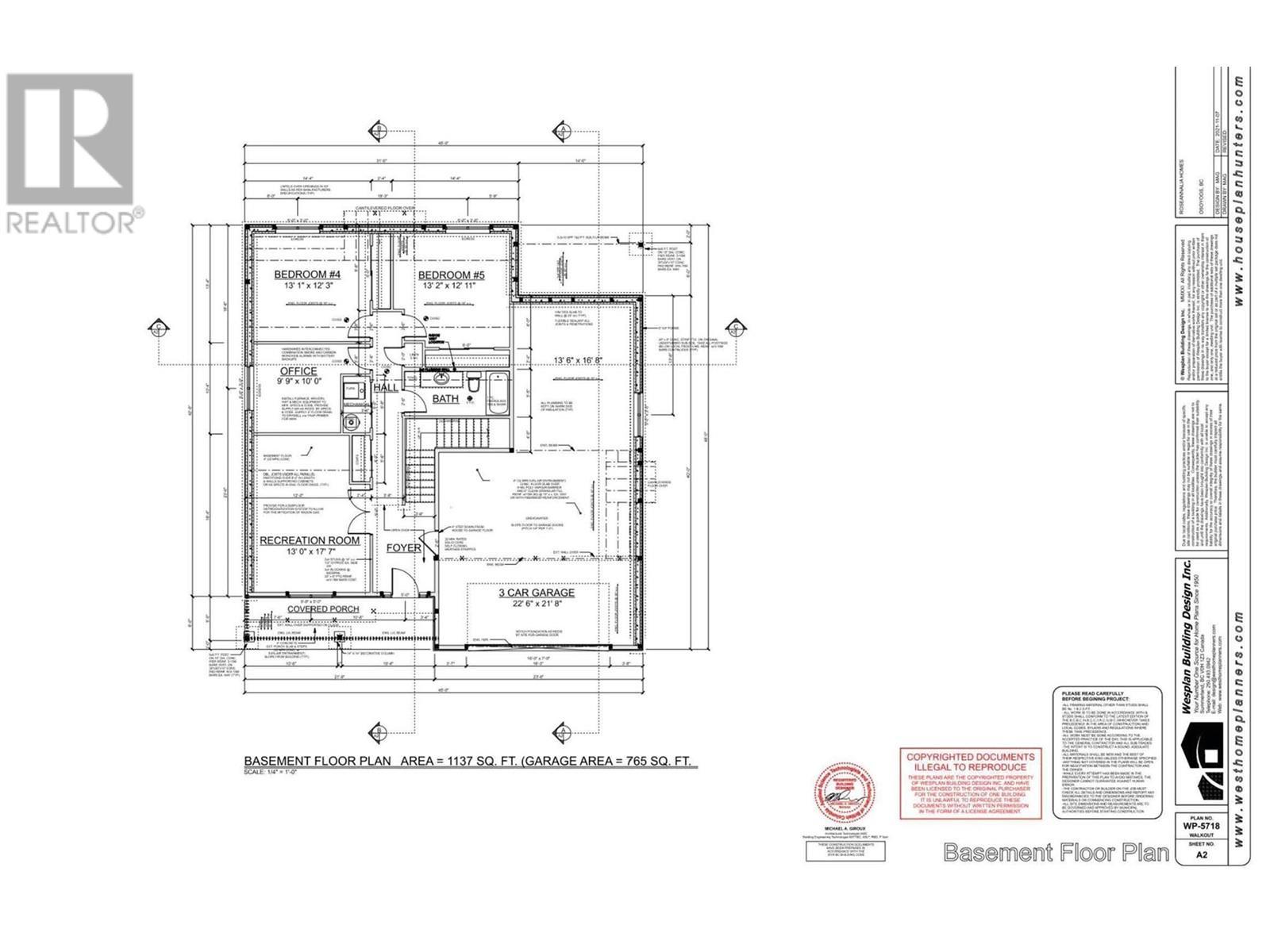
Discover the perfect blend of modern living and serene surroundings at 9 Hibiscus Court. Currently under construction and scheduled for completion mid-2025, this stunning family home will offer over 3,000 sq/ft of thoughtfully designed space. The 5-bedroom, 3-bath layout is tailored for growing families, with an open-concept main living area that welcomes natural light and seamless flow. The lower level provides the potential to develop a suite—ideal for extended family, guests, or rental income. Nestled in a brand-new subdivision just minutes from town, this home is also a stone’s throw from Haynes Point, where outdoor adventures and waterfront views await. This location combines convenience and tranquillity in perfect harmony. Secure your spot in this sought-after neighbourhood. Act now to customize finishes and make this house truly your own! (Currently under-construction finishes and pricing subject to change without notice) (id:6769)

Quick Stats

Key Home Data

3
BATH(S)
5
BED(S)
3115 Sq Ft
SQFT
YES
SHOWING AVAILABLE
Property Type:
Single Family
Home Ownership:
Freehold

Payment Calculator

Calculate your monthly mortgage payment.

Mortgage Amount
$
Amortization
years
Payment Freq.
Interest Rate
%
Calculating...

All About the Details

See specific details below.

Neighbourhood Statistics

Get to know your neighbourhood.

Similar Properties

Other properties you might like.

Search by Keyword:
« prev 1 2 3 4 5 6 ... 142 143 144 next »

Request a Showing

Have questions about this property?

Chat Now

Contact Nicholas T. Parker *PREC
About This Property.


Office: (250) 462-5464